Sign up to get new listings emailed daily! JOIN SIGN IN
Leighton G. Ashley
Licensed RE Associate Broker
REALTOR®, RSPS - Resort & Second Home Property Specialist; SRS - Seller Representative Specialist
Facebook Icon LinkedIn Icon YouTube Icon Pinterest Icon Instagram Icon Blog Icon Realtor.com Icon Zillow Icon 

10 Balsam Court, Ballston Lake, NY 12019

V-Tour
Virtual Tour

14 Total Photos [Click to View All]

Property Description

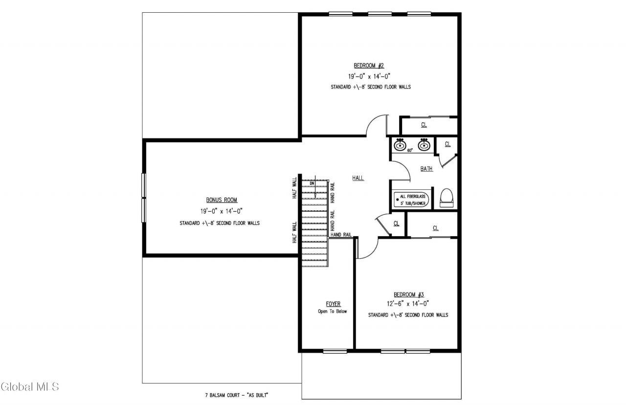
Under Construction Now! This 2,350 sq ft home blends classic design with modern comfort and comes with a full list of included upgrades.The first floor offers formal living and dining rooms plus a bright, open family room and breakfast area connected to the upgraded kitchen, complete with a center island, stainless steel appliances including a gas range, and stylish finishes. Upstairs, enjoy four bedrooms, 2.5 baths, and a convenient laundry room. The primary suite features a walk-in closet and a tiled shower.Step outside to your 12x12 deck, ideal for gatherings or quiet mornings. Located in Timber Creek Preserve, Ballston Lake, you'll love the scenic trails, green space, and unbeatable convenience to shopping, dining, and the Northway. Don't miss the opportunity to own a brand-new home with all the extras already included! Front exterior photo is of this home. Other photos are of a previously built home and may show upgrades not included in the price.

10 Balsam Court | MLS# 202611803

This single family home located at 10 Balsam Court, Ballston Lake, NY 12019 is currently listed for sale with an asking price of $719,980. This property was built in 2025 and has 4 bedrooms and 2 full and 1 partial baths with 2350 sq. ft. Balsam Court is located in the Timber Creek Preserve subdivision within the Shenendehowa school district. Search Timber Creek Preserve real estate on leighton-ashley.timberlandproperties.com today.

Gallery

Property Features

Property Type: Residential - Single Family
Basement: Full, Unfinished
Basement: Yes
Cooling: Central Air
Fireplaces: 1
Garage: 2
Heating: Forced Air, Natural Gas
Home Style: Colonial
Lot Size: 0.16 Acres
Roof Type: Asphalt
Taxes: $13,000
Year Built: 2025

Feature Descriptions

Appliances: Dishwasher, Disposal, Gas Water Heater, Microwave, Range, Refrigerator
Association Amenities: None
Association Fee: 165/Quarterly
Association Fee Includes: Other
Days on Site: 87
Exterior: Vinyl Siding
Exterior: Drive-Paved, Lighting
Fireplace: Family Room, Gas
Flooring: Vinyl, Carpet, Laminate
Foundation: Concrete Perimeter
Interior: Walk-In Closet(s), Ceramic Tile Bath, Eat-in Kitchen, Kitchen Island
Laundry: Laundry Room, Upper Level
Lot: Sprinklers In Front, Landscaped
Parcel #: 412000 249.68-1-49
Parking: Driveway, Garage Door Opener
Parking Total: 4
Parking Total: 4
Patio/Porch: Pressure Treated Deck, Deck, Front Porch, Porch
Rooms Total: 13
Security: Smoke Detector(s), Carbon Monoxide Detector(s)
Sewer: Public Sewer
SQFT Above Grade Finished: 2350
Utilities: Cable Available, Underground Utilities
Water: Public

Room Sizes

Living Room: Level - First
Dining Room: Level - First
Family Room: Level - First
Kitchen: Level - First
Other: Level - First
Half Bathroom: Level - First
Primary Bedroom: Level - Second
Primary Bathroom: Level - Second
Bedroom: Level - Second
Full Bathroom: Level - Second
Laundry: Level - Second

Local Schools

High School: Shenendehowa
School District: Shenendehowa

Estimate Your Payment

Estimated Payment

$ 2,895.69 per month $1,602.36 Principal & Interest $1,083.33 Property Tax $209.99 Homeowner's Insurance

Change Payment Information

%
years/fixed
yearly
yearly (est.)
(Payments are an estimate and may vary by lender)

Demographics

Listed By / Shown By

Listing By

Agency Name: Tailored Real Estate Group
Agency Phone: 1 518-400-2550

Shown By

Agent Name: Leighton G. Ashley
Agent Phone: Cell: (917) 796-3351
Agency Title: Timberland Properties

IDX logo

All information is deemed reliable but not guaranteed. All properties are subject to prior sale, change, or withdrawal. Neither broker(s), nor agent(s) shall be responsible for any typographical errors, misinformation, or misprints, and shall be held totally harmless. Disclaimer: All information deemed reliable but not guaranteed. All properties are subject to prior sale, change or withdrawal. Neither listing broker(s) or information provider(s) shall be responsible for any typographical errors, misinformation, misprints and shall be held totally harmless. Listing(s) information is provided for consumers personal, non-commercial use and may not be used for any purpose other than to identify prospective properties consumers may be interested in purchasing. Information on this site was last updated 05/09/2026. The listing information on this page last changed on 05/09/2026. The data relating to real estate for sale on this website comes in part from the Internet Data Exchange program of Delta Media Group MLS (last updated Sat 05/09/2026 12:00:11 AM EST) or Global MLS (last updated Fri 05/08/2026 11:52:14 PM EST) or New York State Alliance MLS (last updated Fri 05/08/2026 11:58:47 PM EST) or Hudson Valley Catskill Region MLS (last updated Fri 05/08/2026 11:53:46 PM EST) or OneKey MLS (last updated Fri 05/08/2026 11:53:16 PM EST). Real estate listings held by brokerage firms other than Timberland Properties may be marked with the Internet Data Exchange logo and detailed information about those properties will include the name of the listing broker(s) when required by the MLS. All rights reserved.

All information is deemed reliable but not guaranteed. All properties are subject to prior sale, change, or withdrawal. Neither broker(s), nor agent(s) shall be responsible for any typographical errors, misinformation, or misprints, and shall be held totally harmless.

Privacy Policy / DMCA Notice / ADA Accessibility


Agent License Information: 10301223732

Login to My Homefinder

Pixel